Stilvolles und neuwertiges Wohnhaus in Griffen
Dieses neuwertige Einfamilienhaus befindet sich in Griffen, nur wenige Minuten von diversen Einkaufsmöglichkeiten entfernt. Errichtet auf einem ebenen Grundstück, genießt man zahlreiche Sonnenstunden in ruhiger Siedlungslage.
Das Haus wurde im Jahr 2007 errichtet und besticht durch einen zeitlosen Baustil. Gebaut in Holzriegel–Bauweise und einem Massivkeller bietet dieses Haus eine Wohnfläche von rd. 168 m² und einer Nutzfläche von rd. 95 m² im Keller. Die Zufahrt zum Haus führt über eine asphaltierte, öffentliche Straße, von wo aus man auf den Vorplatz und zur Doppelgarage gelangt.
Betritt man das Haus gelangt man durch eine großzügige Diele in einen offen, jedoch optisch getrennten Wohn- Essbereich. Eine Küche mit sämtlichen Elektrogeräten in zeitloser Farbgestaltung ist vorhanden. Der Wohn- Essbereich ist aufgrund der großen Fensterflächen hell und freundlich. Über den schönen und offenen Aufgang gelangt man in das Obergeschoss. Dort befinden sich zwei (Kinder-)Zimmer und ein Badezimmer mit WC, Badewanne und einer Dusche. Das Hauptzimmer (Elternschlafzimmer) verfügt über einen eigenen Ankleideraum. Im ganzen Haus zieren Parkett und Fliesen die Böden. Die Beheizung des Hauses erfolgt über eine zentrale Wärmepumpe mit Fußbodenheizung. Kunststofffenster von Internorm und elektrischer Beschattung sowie eine LAN Verkabelung im ganzen Haus, einer zentralen Staubsaugeranlage und ein Kaminanschluss im Wohnzimmer bieten zusätzlichen Wohnkomfort.
Im Außenbereich befinden sich zwei überdachte Terrassen, auf welcher zahlreiche Sonnenstunden in ruhiger Atmosphäre genossen werden können.
Hervorzuheben ist besonders der zeitlose, jedoch moderne Baustil, die ruhige Siedlungslage sowie die Ausstattung und Neuwertigkeit von diesem Haus !
Kaufpreis: EUR 315.000,-
Betriebskosten:
rd. EUR 132,- /M. (für Grundsteuer, Wasser, Kanal, Abfall, Versicherung)
Baujahr/Gebäude:
~2007 / Holzriegel-Bauweise mit VWS
Anschlüsse:
öffentliche Zufahrt, Kanal, Wasser, Strom, Telefon
Kaufnebenkosten:
– Grunderwerbsteuer 3,5 %
– Grundbucheintragungsgebühr 1,1%
– Vermittlungsprovision 3 % + 20 % Ust.
– Vertragserrichtungskosten ca. 2 %
Allgemeiner Hinweis:
Die angegebenen Daten stammen vom Eigentümer und/oder Dritten und wurden mit Sorgfalt erhoben. Für die Richtigkeit und Vollständigkeit kann jedoch keine Haftung übernommen werden. Zahlenangaben können gegebenenfalls gerundet oder geschätzt sein. Das Anbot ist freibleibend und unverbindlich. Irrtümer und Änderungen sind vorbehalten. Nachdruck/ Vervielfältigung nur mit Genehmigung der Firma Realitäten Perkonig Immobilientreuhand KG.
Ausstattung:
– Parkett- und Fliesenböden
– Zentralheizung Wärmepumpe (Fußbodenheizung)
– Kaminofenanschluss im Wohnbereich
– Internorm Kunststofffenster + elektr. Beschattung
– Bad EG: WT, Dusche, WC, Pissoir
– Bad OG: Doppel-WT, Wanne, Dusche, WC, Abwurfschacht für Schmutzwäsche
– LAN Verkabelung im kompletten Haus
– Verkabelung für Alarmanlage
– Staubsaugeranlage
Aufteilung:
Erdgeschoss: Diele mit Garderobe, offener Wohn-Essbereich mit Küche und Speis, Büro, Gäste-Bad/WC, 2 Terrassen
Obergeschoss: Galerie, 2 Kinderzimmer, Bad/WC, 1 (Eltern-) Schlafzimmer mit Ankleideraum
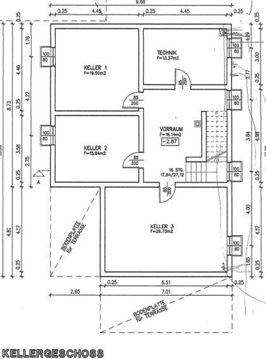
Untergeschoss: 2 Hobbyräume, Technikraum mit Waschküche, 1 Lagerraum
Außenbereich: Doppelgarage mit elektr. Tor und Abstellraum
Flächen:
1.000 m² Grundfläche
rd. 168 m² Wohnfläche
rd. 33 m² Terrasse
rd. 95 m² Keller
rd. 53 m² Garage






























